
設計理念;低調而不奢華,高貴而不張揚!
設計說明:在簡歐風格中我們所需要做的就是減少多余的裝飾,保持高品質的品味,將簡歐的效果變的明顯。與歐式風格的結合保留它的優(yōu)雅高貴更能現行出簡歐風格的魅力,取長補短讓家不僅僅是港灣,還是一個充滿了藝術感的地方。

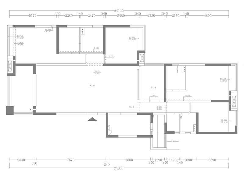
佛山201-300平米五居歐式風格裝修效果圖
室內裝修效果圖-戶型圖

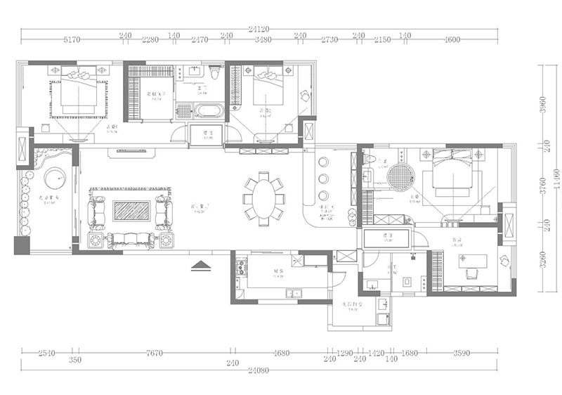
佛山201-300平米五居歐式風格裝修效果圖
室內裝修效果圖-平面圖

佛山201-300平米五居歐式風格裝修效果圖
室內裝修效果圖-客廳

佛山201-300平米五居歐式風格裝修效果圖
室內裝修效果圖-餐廳

佛山201-300平米五居歐式風格裝修效果圖
室內裝修效果圖-臥室

佛山201-300平米五居歐式風格裝修效果圖
室內裝修效果圖-陽臺
柳州101-200平米歐式風格東方名都室內裝修設計案例
歐式風格101-200平米五居室
惠州101-200平米歐式風格利和豪庭家裝設計案例
歐式風格101-200平米四居室
廣州301平米以上歐式風格世紀豪園家裝設計案例
歐式風格301平米以上別墅
廣州101-200平米歐式風格寶峰春天裝修設計案例
歐式風格101-200平米四居室
景德鎮(zhèn)101-200平米歐式風格嘉禾室內設計效果圖
歐式風格101-200平米三居室
嘉興201-300平米歐式風格盛世香堡室內設計效果圖
歐式風格201-300平米別墅
廣州101-200平米歐式風格室內設計效果圖
歐式風格101-200平米三居室
佛山100平米以下歐式風格順景花園裝修設計案例
歐式風格100平米以下三居室